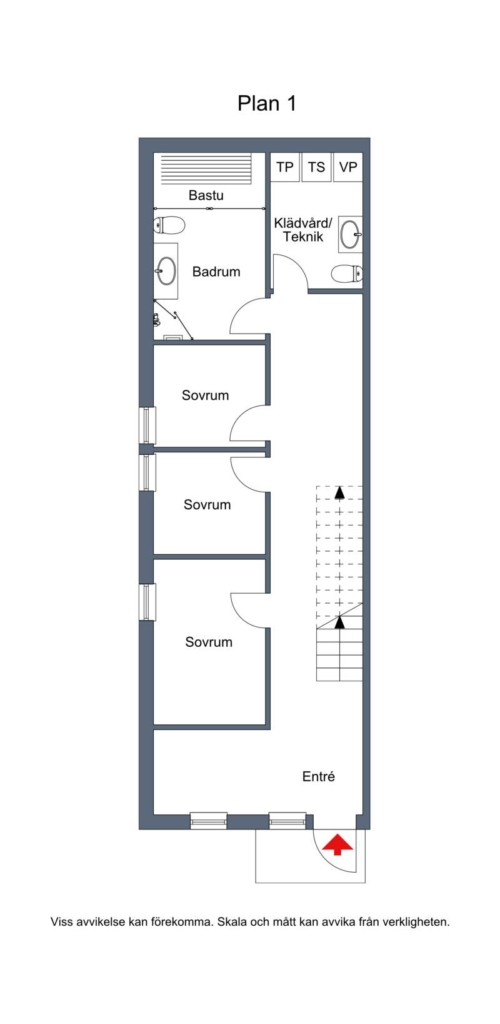
Entré
Rymlig entré med gott om avhängningsytor. I hallgången innanför finns plats till både garderob och låsbart ägarskåp. Här finns både badrum och klädvård med bland annat torkskåp att torka kläderna i till nästa dag. Entrén har klinker på golv och hallgången parkett. Träpanel/målade väggar och träpanel i tak.
Sovrum 1
Sovrum med plats för dubbelsäng och garderobsvägg. Ett fönster. Parkettgolv, målade väggar och träpanel i tak.
Sovrum 2-3
Sovrum med plats för våningssäng och sängbord/byrå. Ett fönster. Parkettgolv, målade väggar och träpanel i tak.
Badrum 1/bastu
Badrummet har dusch, tvättställ med kommod och spegel, WC samt ingång till bastu. Klinker på golv och väggar samt målat tak med infällda spotlights.
Bastun har sittlavar och eldrivet bastuaggregat. Klinker på golv samt bastupanel på väggar och i tak.
Klädvård/ WC
Intill badrummet finns ett separat rum för klädvård som även inrymmer WC och tvättställ med kommod, perfekt om man är många. Här finns värmepanna, torkskåp samt tvättpelare. Klinker på golv, målade väggar samt målat tak.
Allum, plan 2
Mellanplanet består av en stor sällskapsyta med utgång till balkong i vardera ände. I den bortre delen finns kök med köksö samt matplats i mitten och i den andra delen är plats för en generös soffgrupp. En braskamin i mitten ger härligt sken och värme. Parkettgolv, träpanel på väggar och i tak.
Kök, plan 2
Stort och härligt kök med köksö som både ger skönt häng och extra arbetsyta. Köket kommer från HTH med vitvaror i rostfritt. Här finns side by side kyl och frys, inbyggd ugn och mikro, spishäll, köksfläkt och diskmaskin. Balkongdörr till balkong utanför. Bänkskiva i laminat och nedfälld diskho. Parkettgolv, träpanel på väggar och i tak.
Badrum, plan 2
Mellanplanet har ett eget badrum med tvättställ, kommod, spegel, WC samt dusch med vikväggar. Ett fönster. Klinker på golv och väggar samt målat tak med infällda spotlights.
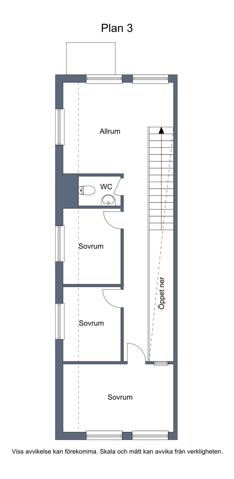
Allrum, plan 3
Högst upp är resterande sovrum samt ett mindre allrum med plats för nättare sittmöbler. Parkettgolv, träpanel på väggar och tak.
Separat WC, plan 3
Intill allrummet är en separat toalett med WC samt tvättställ. Klinker på golv, målade väggar och tak.
Sovrum 4-5, plan 3
Övervåningen har totalt tre sovrum varav två av dem är spegelvända och rymmer vardera våningssäng/familjesäng samt byrå. Ett fönster per rum. Parkettgolv, träpanel på väggar och i tak.
Sovrum 6, plan 3
Det sista sovrummet är ett master bedroom med plats för dubbelsäng, sängbord på vardera sida och byråer eller fåtölj på sidan. Dubbla gavelfönster ger härligt ljus. Parkettgolv, träpanel på väggar och i tak.
Övrigt
Boarean är inte uppmätt. Areauppgiften är hämtad från föreningen. Om denna uppgift är av betydelse för ett köp så rekommenderas att uppmätning görs innan kontraktsskrivning. Säljaren kan inte garantera dess uppgift och eventuell avvikelse från uppgiven area är inte prisavdragsberättigande.
Uppgifterna i objektbeskrivningen härrör huvudsakligen från säljaren och kontrolleras av fastighetsmäklaren endast om omständigheterna ger anledning till detta.
Kontakta oss för boendekostnadskalkyl och ytterligare information.
Boka tid med oss för visning, vi visar när det passar er.
Lös egendom
Lägenheten säljs utan möbler och inventarier. Dessa kan köpas till för den som vill flytta in direkt.